Whitworth Drive, Burton Joyce, NG14

For Sale £775,000

4 2 2
Planning Permission Approved - Gedling Council 2022/0781PN & 2022/0741| ***External CGI Images are for illustration purposes only*** | All Internal Photos are Accurate |

Bel Air - Positioned within the prestigious enclave of Whitworth Drive in Burton Joyce, lies a hidden gem awaiting the touch of visionaries and creators. Boasting four spacious bedrooms, two bathrooms, and a commanding presence on a generous plot, this partially refurbished house presents itself as a canvas for builders, developers, and homeowners with a penchant for customisation and renovation.

Embrace the chance to sculpt your dream residence from the ground up, utilising the already approved planning permissions to construct an abode that resonates with opulence and grandeur. Or, for those inclined to a more subtle transformation, complete the current floorplan to create a homely sanctuary that reflects personal style and finesse.

Whitworth Drive is recognised as one of Burton Joyce's most premier and coveted locations, offering not only the tranquillity and prestige associated with such an address but also the convenience of easy commuting links and proximity to essential local amenities.

The property's substantial footprint is further enhanced by a spacious driveway with ample room for four vehicles, ensuring that parking woes are a thing of the past. As a partially completed project, this house is a tantalising proposition for those eager to put their stamp on a space.

This is not merely a property; it's a once-in-a-lifetime prospect to shape and forge a home that will stand as a testament to your vision and craftsmanship. A visit to this property is an absolute necessity – your blueprint for the extraordinary awaits.

***External CGI Images are for illustration purposes only. ***

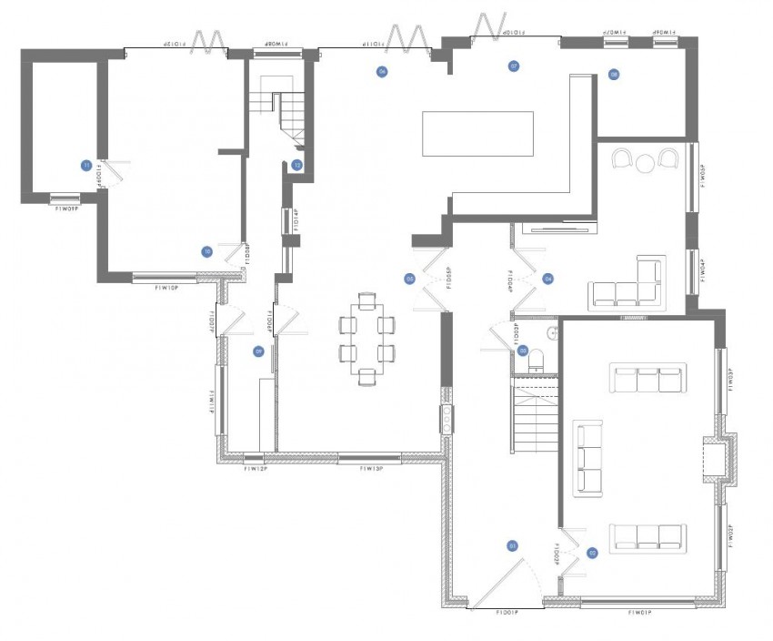
Porch

Entrance Hallway

Living Room (5.57 x 4.26)

Sitting /Dining Room (3.56 x 2.92)

Open Plan Dining Kitchen (7.55 x 4.73)

Utility Room (2.40 x 2.40)

Room (2.80 x 2.50)

Conservatory (3.28 x 2.90)

Bedroom (5.76 x 3.57)

En-Suite (3.55 x 1.74)

Inner Hallway

Bedroom (7.50 x 4.15)

Bedroom (3.86 x 2.86)

First Floor

Bedroom (5.3 x 2.68)

Outside

Garage (6.20 x 4.76)

Workshop (6.20 x 3.20)

Agents Disclaimer

Disclaimer - Council Tax Band Rating - Gedling Council – Tax Band G

This information was obtained through the directgov website. Johnsons and Partners offer no guarantee as to the accuracy of this information, we advise you to make further checks to confirm you are satisfied before entering into any agreement to purchase.

The vendor has advised the following:

Property Tenure is Freehold

Agents Disclaimer: Johnsons and Partners, their clients and employees 1: Are not authorised to make or give any representations or warranties in relation to the property either here or elsewhere, either on their own behalf or on behalf of their client or otherwise. They assume no responsibility for any statement that may be made in these particulars. These particulars do not form part of any offer or contract and must not be relied upon as statements or representations of fact. 2: Any areas, measurements or distances are approximate. The text, photographs and plans are for guidance only and are not necessarily comprehensive. It should not be assumed that the property has all necessary planning, building regulation or other consents and Johnsons and Partners have not tested any services, equipment or facilities. Purchasers must make further investigations and inspections before entering into any agreement.

Purchaser information -The Money Laundering, Terrorist Financing and Transfer of Funds (Information on the Payer) Regulations 2017(MLR 2017) came into force on 26 June 2017. Johnsons and Partners require any successful purchasers proceeding with a property to provide two forms of identification i.e. passport or photocard driving license and a recent utility bill or bank statement. We are also required to obtain proof of funds and provide evidence of where the funds originated from. This evidence will be required prior to Johnsons and Partners removing a property from the market and instructing solicitors for your purchase.

Third Party Referral Arrangements – Johnsons and Partners have established professional relationships with third-party suppliers for the provision of services to Clients. As remuneration for this professional relationship, the agent receives referral commission from the third-party companies. Details are available upon request.

  • 2022/0781PN- Planning permission approved class AA planning to add a storey to the property and create 4 additional bedroom upstairs all with ensuites
  • 2022/0741- Replacement of existing outbuildings (pool house which has already been demolished) to be rebuilt and attached to the garage creating additional pool house or annex space.
  • Kitchen- Recently renovated to an exceptionally high specification, featuring a Rempp German design kitchen. to include BORA hob with integrated extraction, and a Quooker CUBE boiling water tap
  • Secluded Location on a Sought After Road
  • Renovating the Current Floor Plan Offers an Amazing Opportunity with the Option to Extend if Required
  • Popular Village with a Wide Range to Amenities and Transport Links
  • ***External CGI Images are for illustration purposes only. ***
  • Viewings on this Property are Highly Advised
Floorplan for Whitworth Drive, Burton Joyce, NG14
Similar Properties

Get an instant online valuation

Find out how much your property is worth