Collyer Road, Calverton, Nottingham

For Sale £220,000

3 1 1
Three Bedrooms | Semi Detached Home | Well Presented Throughout | Modern Breakfast Kitchen | Conservatory | Parking for Two Cars | Spacious Rear Garden | Close to Local Amenities and Transport |

Located in the popular area of Calverton, Nottingham, this attractive semi-detached property on Collyer Road, presents a splendid opportunity for an array of buyers seeking the comfort and convenience of modern living. With three bedrooms, this residence combines practicality with style.

As you step through the front door, you're greeted by a charming porch leading to a spacious and inviting living room awash with natural light. The living space is ideal for both quiet nights in and lively gatherings with friends and family. Beyond this, the well-appointed kitchen caters to all culinary needs and opens seamlessly into a delightful conservatory. This additional space, which overlooks the manicured rear garden, offers flexibility as a dining area or a tranquil spot to unwind.

The upper level of the home boasts three well-proportioned bedrooms, each benefiting from ample daylight, ensuring a serene and restful ambiance. A three-piece family bathroom serves these rooms, offering functionality and ease for the household.

Outside, the property excels with two parking spaces to the front and a charming rear garden. The garden, accessible through secure gates, features a pleasing blend of patio, lawn, and a practical shed, all enclosed with fence panels to ensure privacy and security. This external space provides the perfect canvas for outdoor enthusiasts and those who treasure al fresco moments.

With local amenities, schools, and transport links within easy reach, this Collyer Road abode is not just a house, but a home waiting to welcome its new owners with open arms and the promise of cherished memories.

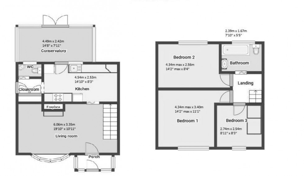
Porch

Entrance Hallway

Living Room (6.06 x 3.35)

Kitchen (4.54 x 2.53)

Conservatory (4.49 x 2.42)

Cloak Room Area

Ground Floor WC

First Floor Landing

Bedroom One (4.34 x 3.40)

Bedroom Two (4.34 x 2.56)

Bedroom Three (2.74 x 2.54)

Bathroom (2.39 x 1.67)

Agents Disclaimer

Disclaimer - Council Tax Band Rating - Gedling Council – Tax Band A

This information was obtained through the directgov website. Johnsons and Partners offer no guarantee as to the accuracy of this information, we advise you to make further checks to confirm you are satisfied before entering into any agreement to purchase.

The vendor has advised the following:

Property Tenure is Freehold

Agents Disclaimer: Johnsons and Partners, their clients and employees 1: Are not authorised to make or give any representations or warranties in relation to the property either here or elsewhere, either on their own behalf or on behalf of their client or otherwise. They assume no responsibility for any statement that may be made in these particulars. These particulars do not form part of any offer or contract and must not be relied upon as statements or representations of fact. 2: Any areas, measurements or distances are approximate. The text, photographs and plans are for guidance only and are not necessarily comprehensive. It should not be assumed that the property has all necessary planning, building regulation or other consents and Johnsons and Partners have not tested any services, equipment or facilities. Purchasers must make further investigations and inspections before entering into any agreement.

Purchaser information -The Money Laundering, Terrorist Financing and Transfer of Funds (Information on the Payer) Regulations 2017(MLR 2017) came into force on 26 June 2017. Johnsons and Partners require any successful purchasers proceeding with a property to provide two forms of identification i.e. passport or photocard driving license and a recent utility bill or bank statement. We are also required to obtain proof of funds and provide evidence of where the funds originated from. This evidence will be required prior to Johnsons and Partners removing a property from the market and instructing solicitors for your purchase.

Third Party Referral Arrangements – Johnsons and Partners have established professional relationships with third-party suppliers for the provision of services to Clients. As remuneration for this professional relationship, the agent receives referral commission from the third-party companies. Details are available upon request.

  • Three Bedroom Home
  • Semi Detached
  • Extremely Well Presented
  • Modern Kitchen
  • Conservatory
  • Spacious Living Room
  • Three Well Appointed Bedrooms
  • Modern Bathroom Suite
  • Popular Location
  • Close to Local Amenities
Floorplan for Collyer Road, Calverton, Nottingham
Similar Properties

Get an instant online valuation

Find out how much your property is worth